SNIMANJE I IZRADA TEHNIČKE DOKUMENTACIJE ZATEČENOG STANJA KOMPLEKSA STAROG GRADA U GRADAČCU
- Ademira Aganović dia

- Mar 19, 2021
- 11 min read
ZA POTREBE SVIH FAZA KONZERVATROSKIH I RESTAURATORSKIH RADOVA
Potreba za izradom kompletne dokumentacije zatečenog stanja proizašla je iz činjenice da se na Kompleksu Starog grada u Gradačcu planiraju aktivne investicije i intervencije u vidu konzervatorksih i restauratorskih zahvata, a da za iste nije bilo dovoljno tehničke dokumentacije koja bi poslužila kao podloga u daljnjem radu. Za neke od cijelina postoji nepotpuna tehnička dokumentacija, ali činjenica je da većina cjelina unutar Kompleksa uopšte nema zabilježenu studiju koja potvrđuje promjene na strukturama kroz historiju, niti njihovo trenutno stanje.

Osnovi cilj ovog projektnog zadatka je bio:
- Prikupljanje geodetsko-katastarskih podloga
Opština Gradačac je obezbjedila pristup svim podlogama koje je imala na raspolaganju, te unajmila stručni tim koji je uradio detaljne geodetske snimke terena i bedema Kompleksa koje su poslužile kao baza za razradu projekta snimanja zatečenog stanja. Na osnovu geodetskog snimka urađeni su presjeci terena i zidina.
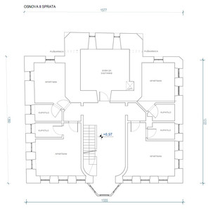
- Detaljno arhitektonsko snimanje cjelina unutar Kompleksa Starog grada
Po dogovoru sa nadležnim organima iz Opštine, dogovoreno je snimanje Kompleksa Starog grada. Tim od 20 arhitektonskih i građevinskih inžinjera, te inžinjer hortikulture aktivno je boravio na lokaciji Kompleksa. Odrađena su precizna arhitektonska mjerenja svih cjelina, snimljen je detaljan fotomaterijal koji je se pored klasičnih fotografija sastoji i od drone fotografisanja, snimanja i 3D mapinga kompletnog lokaliteta.
Neke cjeline, kao što su podzemni tuneli koji povezuju veliki i mali kazamat te ekonomski objekat koji je danas u službi restorana, su po prvi put snimljene u svrhe izrade dokumentacije i digitalizacije.
- Izrada i digitalizacija tehničke dokumentacije zatečenog stanja
Na osnovu prikupljenih informacija s terena urađeni su detaljni tehnički crteži sa tlocrtima, presjecima, fasadama i petim fasadama cjelina. Svaka cjelina je detaljno tretirana sa svim potrebnim arhitektonskim crtežima, fotografijama i tehničkim opisima kao dokaznicama trenutnog stanja u kojem se tretirana cjelina nalazi. Posebna pažnja je data i bedemima Gornjeg i Donjeg grada koji su zajedno sa tabijama obrađeni kao zasebna cjelina.
U sklopu snimanja jedino nije bio uključen objekat Gradske biblioteke sa stalnom muzejskom postavkom, jer ista je već prošla kroz restauratorke radove i za nju postoji dokumentacija te neće biti tretirana u trenutno planiranim zahvatima.
Pored potrebne arhitektonske dokumentacije Kompleksa urađena je i evidencija biljnih vrsta sa prsnim prečnicima i uopštenim zdravstvenim stanjem zelenila i stanjem tla. U prilogu tome urađen je i katastar zelenila u kojem je svakoj biljnoj individui dodjeljen jedinstveni broj. Ovi podaci mogu poslužiti za sve potrebe budućih intervencija na zelenim površinama Kompleksa Starog grada.

Finalni ishod cijelog projekta jeste to što će kompletna tehnička dokumentacija i njena digitalna verzija biti zavedena u arhiv Opštine Gradačac kao presjek trenutne situacije zatečenog stanja Kompleksa i moći će da posluži kao detaljna i vjerodostojna tehnička podloga ne samo za trenutne nego i sve buduće intervencije na lokalitetu Kompleksa Starog grada u Gradačcu.
Graditeljska cjelina „Stari grad u Gradačcu“ proglašava se nacionalnim spomenikom Bosne i Hercegovine. Nacionalni spomenik se nalazi na lokaciji označenoj kao k.č. broj 9/85 (stari premjer), upisanoj u z.k. uložak broj 728, k.o. Gradačac, općina Gradačac, Federacija Bosne i Hercegovine, Bosna i Hercegovina.
Nacionalni spomenik čine: bedemi, objekti unutar bedema - Gornji grad sa kulom Husein–kapetana Gradaščevića i Donji grad sa sahat–kulom, zgradom Gradske biblioteke, radio-stanice i muzeja, zgradom gimnazije i predmetima iz muzejske zbirke koji su upisani u inventarnu knjigu Muzeja.
Bedemi i tabije
Cijeli kompleks koji čine donji grad i gornji grad je opasan bedemima koji zatvaraju površinu od 35 ari, 91m2. Prostor Starog grada ima oblik nepravilnog četverougaonika sa dužinom stranice od oko 180 – 200 m. Linija bedema koji okružuju cijeli grad je izlomljena.
Na jugoistočnom, jugozapadnom i sjeverozapadnom uglu se nazire linija osmougaonih bastiona, koji su sada zatrpani ili od kojih su samo ostali podzidovi. Unutar Donjeg grada su ostaci još jednog poligonalnog bastiona. Bastion je okrenut ka sjeveroistoku, dimenzija 15 x 20m. Desno i lijevo od njegovih bočnih zidova, ka bedemima, su sagrađeni pregradni zidovi. Leđa bastiona su štićena prirodno uzdignutim terenom, opasanim vanjskim bedemima između zapadne i južne kapi-kule.
Na sjeveroistočnom uglu je osmougaoni bastion visok skoro 16 m. Zidovi su mu debeli oko 1,50m. Unutrašnjost bastiona je široka oko 8,5m. Ulaz je prilično uzak i na njega se prilazi stepenicama. Kula i bastion na sjevernoj strani tvrđave su bili povezani podzemnim hodnikom. Istočno od bastiona na bedemu je lučno zasveden veliki otvor, koji je danas nezaštićen.
Okolo Gornjeg grada su bedemi. Nadzemni dijelovi bedema danas su visoki do 1m. Krune zidova su najvećim dijelom presvučene betonom, a tamo gdje to nije slučaj došlo je do osipanja. Južni bedem je građen od cigle. Njegova kruna se također osipa.
Mali i veliki kazamati i podzemni tuneli
Kazamati su utvđeni topnički položaji. Nalaze se uz jugozapadni ugao bedema Donjeg grada, sa unutrašnje strane nekadašnjeg poligonalnog bastiona, pod naslagama zemlje i rastinja. Duž zapadnog, ulaznog zida nalaze se mali i veliki kazamat smješteni u podrumu južne kule uz bedem od ulaza u tvrđavu.
U dnu kule bio je smješten mali kazamat, a ulaz u kazamat je bio lučno presveden. Danas je mali kazamat zatrpan do visine luka koji je nad zemljom.
Ulaz u kulu je na istočnom zidu. Jugozapadnu kulu i veliki kazamat dijeli prolaz i glavni ulaz u Gornji grad. Ulaz je širine oko 3m, lučno zasveden. Zapadni vanjski zid velikog kazamata je debeo 2m, a zid u unutrašnjosti tvrđave 1,20m. Vanjska dužina kazamata je oko 13,50 m, a unutašnjost je dužine od 8,65 m. Kazamat je podijeljen na dvije prostorije zasvedene bačvastim svodom. Pristup je omogućen kroz dva ulazna otvora, od kojih se jedan nalazi na južnoj, a drugi na zapadnoj strani tvrđave. Zapadni ulaz je djelimično zatrpan, tako da je nad zemljom vidljiv samo luk, čija je jedna polovina zazidana. Sjeverozapadni ugao tvrđave završava malim bastionom koji je u osnovi nepravilni četverougaonik visine oko 11m.

Ispod Starog grada u Gradačcu protežu se tuneli i podzemne prostorije koji su predstavljali drugi nivo odbrane tvrđave u slučaju napada neprijatelja. Prednji tunel koji je pravljen od cigle dug je 12m a širok 4m. Visina prednjeg tunela iznosi 2,5m. Stražnji tunel koji je povezan s prednjim dug je 10m a širok 2,5m. Visina stražnjeg tunela je 7m.
Kula Husein-kapetana Gradašćevića
Kla Husein-kapetana Gradaščevića je situirana u najvišem dijelu Starog grada. Predstavlja tip dvorca feudalca, utvrđenog radi sigurnosti. Na arhitekturu objekta dosta su utjecale promjene namjene kroz minuli period. Kula se sastoji iz dva dijela: glavne građevne mase sa tri etaže (dimenzija 12,50 m ux 15,50 m) i i tornja (7,18 x 7,70 m) koji zadire sa istočne strane ove mase i nadvišuje je sa još tri etaže. Visina tornja je 18,20 m. Na sve četiri strane zadnjeg sprata nalazi se drveni doksat. Iznad ulaza na prednjoj fasadi takođe se nalazi drveni doksat, trostrani, natkriven zasebnim limenim krovom, dok je ostatak objekta pokriven crijepom.
Vrata se na kapetanovoj kuli završavaju polukružnim lukom. U prizemlju su svega tri prostorije, zasvođene bačvastim svodovima, a na prvom i drugom spratu nalazi se po pet soba simetrično raspoređenih oko centralno postavljenog pretsoblja. Dimenzije drvenih konstruktivnih dijelova su znatno jače nego što ih obično viđamo na drugim spomenicima tog doba.
Ispitivanjem na objektu pri njegovom snimanju 1952 godine utvrđeno je da postoji čitav niz prozora u svim spratovima koji su tokom vremena zazidani, vjerovatno zato da bi se stvorila bolja mogućnost za smještaj žandarskih kreveta. Nemoguće je utvrditi sa sigurnošću sve elemente koji su promjenjeni na objektu, jer je prvobitno stanje objekta slabo poznato. Iako je vidljivo da su pojedini prozori zazidani nemoguće je utvrditi kako su ti prozori prvobitno izgledali, kakva im je bila stolarija, da li su neki imali demire ili mušepke itd. To je izmijenjeno i na onim prozorima koji su do danas ostali. Ne znamo ni kako su prvobitno izgledala vrata, ni ograda stubišta, ni konstrukcija doksata i vidikovca. Ne možemo se poslužiti ni analogijom, jer u Gradačcu i okolini iz tog vremena uopće nema sličnih objekata.
Ekonomski objekat (restoran)
Ekonomski objekat koji je danas u funkciji restorana, smješten je sa zapadne strane kule. Ekonomski objekat je jednostavnog, pravougaonog oblika smješten u pravcu sjever-jug dimenzija 15.0 x 8.8 m.
Pretpostavlja se da je objekat služio u ekonomske svrhe, kao servisni prostor, skladište hrane, kao i konjušnica čemu svjedoči postojanje halki na zidovima unutrašnjosti objekta. Ispod objekta nalaze se dva tunela.
Vanjski zidovi objekta su masivni kameni zidovi. Sa sjeverne strane objekta se nalazi dograđeni otvoreni, natkriveni prostor sa drvenim stubovima. Vanjski zidovi se s unutrašnje strane prelaze u bačvaste svodove. Objekat je relativno dobro očuvan, a najoštećenija je zapadna fasada, te je potrebno izvršiti adekvatne metode zaštite i obnove istih. Krov je u dobrom stanju i nije autentičan. Na sjevernoj fasadi su postavljene vidljive instalacije koje je neophodno interpolirati u strukturu objekta ili pomjeriti na adekvatnije i manje vidljivo mjesto.
Sjeverna kapi-kula
Ukupno 3 kapikule koje se trenutno nalaze na lokalitetu Kompleksa Starog grada služe kao portali tj. ulazi u područje Kompleksa Starog grada. Sjeverna kapi-kula predstavlja glavni ulaz u Stari grad iz centralne gradske jezgre, pozicionirana odmah pored stare gradske džamije.
Tvrđava se nalazi na terenu koji sa svih strana pada prema sjevernoj kapi-kuli, gdje je teren najniži i tu se ujedno nalazi veza tvrđave sa centralnim dijelom civilnog naselja - čaršijom.
Dimenzije sjeverne kapi-kule su: vanjske 9.14 x 8.88m, unutrašnje 6.50 x7.38m.
Ulazi su lučno zasvedeni. Ulaz na prednjem, istočnom zidu kapi-kule je naglašen profiliranim četverougaonim okvirom, luk iznad ulaza je ukrašen biljnim ornamentom. Iznad vrha luka je uokvirena ploča sa plastičnim prikazom čovjeka na konju sa biljnim motivima. Sjeverno od ulaza je natpis „Dobrotvor Osman – kapetan, 1223“ (1808),( Mujezinović, 1998, 182 ) .
Na vrhu kule, ispod krova, su četiri simetrično postavljena proreza, a u sredini, nešto niže tačno iznad ploče sa plastičnim prikazom, je umetnut blok sa puškarnicom. Stražnji, zapadni zid je jednostavno riješen, bez ukrasa i puškarnica. Primjećuje se da su u unutrašnjosti kule zidovi do visine vrha luka brižljivo građeni, sa ujednačeno dimenzioniranim i klesanim blokovima, dok je gornji dio do krova građen nešto sitnijim i nemarnije slaganim kamenjem.
Kula je zatvorena četverovodnim krovom s drvenom šindrom. Iz kulu sa sjeverne strane je prizidan mali povišeni plato, koji je također mogao služiti kao topnički položaj.
Južna kapi-kula
Južna kapi-kula, kako joj i ime govori nalazi se na jugu lokaliteta Starog grada i danas služi kao jedini kolski ulaz u Stari grad čija saobraćajnica vodi do unutrašnjeg parking prostora. Dinamička opterećenja, zub vremena, oštećena šindra na krovu, te eventualno pritajeno klizište ( što naravno treba dokazati – geomehaničkim ispitivanjem terena), kao i neregulisana odvodnja oborinskih voda doveli su do evidentnih oštećenja na objektu.
Vanjske dimenzije kapi-kule su 9,00mx8,50m , a unutrašnje 5,00m x 4,00m.
Unutrašnji zidovi do visine vrha lukova su zidani sa ujednačenim klesanim blokovima, dok je gornji dio zidan sitnijim kamenom neprecizno. Na gornjem dijelu zapadnog zida primjetna je zidarska intervencija, kao i na istočnom zidu ispod krova. Na sve četiri strane Južne kapi-kule primjećuju se nepravilne pukotine, kako na unutarnjim, tako i na vanjskim stranama zidova.
Luk i dovratnici ulaza na južnom zidu ove kapi-kule su naglašeni i ukrašeni geometrijskim i floralnim ukrasima. Iznad luka je ploča sa vitičastim ukrasima, a iznad nje puškarnica. Simetrično uz nju je sa svake strane po jedan uski procjep kao otvor za puške. Istočno od ulaza je natpis „Dobrotvor Osman – kapetan, 1223“ (1808),( Mujezinović, 1998, 182 ).
Uz istočni rub južnog zida na jednom kamenom bloku su isklesani buzdovan i kriva sablja. Isti motiv nalazi se na kamenom bloku na zapadnoj strani pri dnu južnog zida, a negdje na sredini iste strane je i kamen sa uklasanim motivima polumjeseca, rozete i jabuke. Sjeverni zid ove kapi-kule sa ulazom u unutrašnjost tvrđave je jednostavno riješen, bez ukrasa i puškarnica. Jedinstven je slučaj u arhitekturi turskog perioda da je na vratima tvrđave prisutan ovako bogat dekor.
Zapadna kapi-kula
Na zapadu se nalazi sporedni ulaz u Stari grad tj. zapadna kapi- kula, četverougaone osnove, vanjskih dimenzija 6.97 x 6.90m i unutrašnjih 4.20 x 4.08m.
Kula je zidana od uglavnom pravilno obrađenih kamenih blokova, i zatvorena četverovodnim krovom s drvenom šindrom. Na ulaznom zidu nema ukrasa.
Kapi kula je konstruktivno u dobrom stanju, izuzev krovne konstrukcije i pokrivača. Objekat je devastiran grafitima, neadekvatnim fugovanjem, odnosno fugovanjem cementnim malterom.
Od potrebnih intervencija u cilju sanacije objekta predlaže se prvenstveno skidanja postojeće drvene konstrukcije i šindre i zamjena istih sa kvalitetnom i tradicionalnom ručno pritesanom građom i šindrom. Također, potrebno je sanirati krunu zida, očistiti grafite i cementne fuge, i omalterisati krečnim malterom.
Sahat-kula
Sahat-kula se nalazi u starom gradu Gradačcu unutar zidina tvrđave nedaleko od kule Huseina-kapetana Gradaščevića. Sahat-kula je nacionalni spomenik Bosne i Hercegovine kao dio šireg kompleksa. Najmlađu sahat-kulu u BiH, podigao je Husein-kapetan Gradaščević 1824. godine. Iznad ulaza je uklesan tarih u kamenu sa osnovnim podacima.
Originalni sat prvi put je zamijenjen za vrijeme austrijske uprave, kada je iz Beča donesen i ugrađen novi. Nakon toga promjenjen je još nekoliko puta, a posljednji put je popravljen 1948. Radio je sve do 1953. godine, kada je gradačačka sahat-kula prestala biti aktivna.
Sahat-kule su visoke i vitke zgrade kvadratne osnove, zidane od kamena i pokrivene šatorastim krovom. Predstavljaju osmanlijsku varijaciju zapadnoevropskog oblika gradskog zvonika.
Sahat-kula ima oblik tornja koji se od dna postepeno sužava prema koti vrha. U odnosu na najnižu točku objekta, ta kota ne stoji potpuno vertikalno već je djelomice nagnuta na jednu stranu. Približno je kvadratne osnove, dimenzija 5,23 x 5,11 m, a ukupna visina iznosi 22,0 m. Tri ivice kule su zaobljene, a četvrta je oštrog ruba.
Objekat ima prizemlje i pet etaža. Od prizemlja do zadnjeg sprata vodi drveno stepenište široko 0,75 m, sa 90 stepenica. Na južnoj strani su ulazna jednokrilna vrata, dimenzija 0,77 x 1,83 m. Vrata su zasvedena, po materijalu željezna. Na četvrtoj etaži je po jedan prozorski otvor sa polukružnim završetkom, dimenzija 0,58 x 1, 15 m.
Na petoj etaži, ispod krova, su četiri pravougaona prozorska otvora koji su predviđeni za satove. Svjetlost je u unutrašnjost objekta dovedena pomoću uskih otvora koji se šire prema unutrašnjosti. Otvori su raspoređeni od podnožja pa do vrha kule.
Konstrukcija kule je završena četverovodnim šatorastim krovom. Intervencijama 1953. godine limeni pokrov je zamjenjen šindrom. Zidovi su debeli 0,75 m i zidani kamenom, izuzev gornjeg dijela visine 2,15 m, koji je od opeke. Vrh kule u visini od pola metra ozidan je ciglom, dok je ostali dio od kamena.
Sahat-kula je znatno zakošena. 80-ih godina su poduzeti hitni radovi kojima je zaustavljeno naginjanje sahat-kule. 1953. godine izvršena je sanacija sahat-kule. Obnovljena je krovna konstrukcija, dotrajali limeni pokrov je zamijenjen šindrom, popravljeno je stepenište i postavljena vrata. 1997. godine prilikom zaštitnih radova na kuli Huseina-kapetana, sanirana je i sahat-kula.
Gimnazija
Zgrada gimnazije smještena je u jugozapadnom dijelu Donjeg grada unutar kompleksa Starog grada u Gradačcu. Objekat je sagrađen krajem 19.-og stoljeća (1888.godine), u vrijeme Austro - Ugarske vladavine, dok je drugi sprat dograđen 1956. godine.
Prvobitna namjena objekta bila je civilna - služio je kao zgrada sreskog suda, poreske uprave i gruntovnice sa katastrom. U podrumskim prostorijama su bile zatvorske ćelije, a sa zadnje strane je kamenim zidovima bilo ograđeno dvorište za zatvorenike.
Dimenzije objekta su 29.54 x 16.25m, a sastoji se od podrumske, prizemne te dvije etaže. Pristup objektu je sa sjeveroistočne strane, dok je sporedni ulaz smješten na jugoistočnoj fasadi.
Objekat je pretrpio požar, te ozbiljna oštećenja izazvanih ratom i dugogodišnjim neodržavanjem. Danas je zgrada gimnazije napuštena i u lošem stanju, vidna su oštećenja na fasadi, otvorima, stropnoj i krovnoj konstrukciji. Pojedinim dijelovima pristup nije moguć (podrumska etaža).
Iako je objekat bio pod zaštitom države, uz njega je izrađena fiskulturna sala dimenzija 14 x 23m, koja predstavlja neadekvatnu gradnju u okviru Starog grada.
Zelene površine
Između kule kapetana Gradaščevića, zidina i drugih značajnih historijskih objekata, Kompleks Starog grada je najvećim dijelom pokrivena zelenim površinama. Te zelene površine se sastoje isključivo od travnjaka, stabala i grmlja na terenu koji je pod većim ili manjim nagibom.
Travnjaci zauzimaju ukupno 23218 m2. Većinom su u slabom stanju, a na pojedinim mjestima su neugledni. Takvo stanje se ogleda u zatravljenosti sa velikim udjelom korova. Na pojedim mjestima, korovi preovladavaju, ili trave nema gotovo nikako. Zatravljeni teren je jako neravan sa brojnim rupama, što ukazuje na nekvalitetno podizanje i održavanje travnatih površina.
Drvenaste vrste (drveće i grmlje) pokrivaju veći dio prostor gradine, sa najgušćom zastupljenošću u zapadnom i centalnom dijelu, i najrjeđom u južnom dijelu. U gornjem gradu nisu zastupljene.
Na području Starog grada ukupno je determinisano 26 vrsta, kako autohtonih tako i alohtonih vrsta drveća i grmlja. Pojedina stabla su planski sađena i stara su 40 i više godina, a pojedina su samonikla usljed slabog održavanja zelenih površina,te takva stabla sad imaju 10-20 godina.
Visine stabala variraju od 3 metra, stabla zove, do 20m, stabla gledičije i topole. Na prostoru koji pripada gradini Gradačac nalazi se ukupno 199 individua, od čega veliku većinu čine individue drveća. Stabla u središnjem dijelu gradine, ujedno i najstarija stabla u kompleksu, gdje visinski preovladavaju jablani, a brojčano breze i zove.
Od biljnog svijeta još su prisutni bršljan, javor i druge samonikle drvenaste i zeljaste vrste u zidinama tvrđave, to jest naseljavaju vertikalne i horizontalne otvore u zidinama. Pojedine vrste su visoke i po 2 metra. Ove vrste na pojedinim dijelovim pokrivaju i preko 50% posto zida, te imaju utjecaj na stvaranje pukotina i propadanje. Također vlažniji i hladniji dijelovi tvrđave, odnosno njeni zidovi obrasli su mahovinom. U pojedinim slučajevima i cijelom površinom.

Zdravstveno stanje najstarijih stabala većinom je uredno, dok su mlađa i manja stabla napadnuta raznim parazitskim vrstama gljiva i biljaka, kao i štetnim vrstama insekata. Kao kod travnjaka i kod drvenastih vrsta je vidljivo neadekvatno i nekvalitetno održavanje.
Zemljište je bogato mikrofaunom i organskom materijom. Prema bonitetnoj vrijednosti i drugim karakteristikama spada u IV bonitetnu kategoriju. Zemljište je većim dijelom bazična ilovača, a na zapadnom dijelu je kiselo.
Urbani mobilijar poput klupa, rasvjete, kanti za otpatke i sl. nije zastupljen. Staze su kamene, terasaste i vrlo široke, i do 6 m. Također u sklopu zelenih površina, u centralnom dijelu, nalazi se i mali spomenik NOR-a.
Postojeće stanje je detaljno predstavljen na situaciji zelenih površina gdje su predstavljene sve vrste drveća sa prsnim prečnikom u centimetrima i grmlja sa brojem biljaka po m2. U kombinaciji sa katastrom zelenila, registrovana je tačna vrsta, debljina prsnog prečnika, a time i približna starost individualnih stabala i grmlja.
Također u sklopu ove baze podataka, a radi jednostavnijeg vođenja i planiranja zelenila, napravljen je katastar zelenila Starog grada, gdje je svakoj individualnoj biljci, u konkretnom slučaju drveću i grmlju dodjeljen jedinstveni broj.








































































































































































































Comments